基本介绍
JL型及JLT型刚性叶轮给料机是利用带格室的旋转叶轮,从上部贮料仓或料斗内把粉状及小粒状物料转送到下部的出料口排出,实现均匀给料或变速给料。使用恒转速给料时,该机可实现均匀给料。如采用调速电机,可根据需要随时调节和改变叶轮转速从而实现给料量的调节。
我厂所生产的刚性叶轮给料机分为两种形式,JL型为非调速型,配摆线针轮减速机,JLT为调速型,配滑差调速电机及ZQ系列减速机。

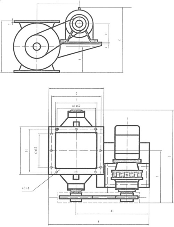
外形尺寸
JL型刚性叶轮给料机外形图主要尺寸表1

JLT型刚性叶轮给料机外形图主要尺寸表2





技术参数
1、JL型刚性叶轮给料机具有给料均匀,结构紧凑,密封性能好等显著优点,广泛应用于水泥,建材,矿山,钢铁等行业。其主要技术参数见下。
JL型刚性叶轮给料机主要技术参数1

2、JLT型刚性叶轮给料机具有给料量可调,减速机和电机单独支撑,明显减少叶轮给料机的承受力的特点,是需变量给料场合的*选设备。其主要技术参数见表2。
JL型刚性叶轮给料机主要技术参数2

装拆方法
刚性叶轮给料机的装拆只需将卸料器法兰与设备法兰对接即可,其余无需*支架
解体
1、拧下前端盖与摆线针轮间的紧固螺栓,卸下摆线针轮减速机与电机
2、拧下前端盖的紧固螺栓,用两只快速拆卸螺栓把前端盖拉出(注意:两边要平行)。
3、拧下后端盖的紧固螺栓,用两只快速拆卸螺栓把后端盖与叶轮一起拉出(注意:两边要平行),卸下后端盖上的轴承盖,取下轴用弹簧挡圈,沿轴间轻轻锤打叶轮轴,即可拆开后端盖与叶轮,叶轮与轴是整体的。
4、拧下叶片上的紧固螺栓,即可卸下弹性刀片及压板(注:弹性刀片可进行自由调节)。
组装
组装刚性叶轮给料机时,按上述拆卸相反顺序进行,注意以下几点:
1、清洗完的*件组装前,应对滑动和滚动表面涂以润滑油,以形成初润滑条件。
2、在拆卸中,如果毛毡被损坏应重新换上,以免造成渗漏油,对耐油橡胶密封环要注意调整弹簧的松紧度,并涂满油脂,以保证良好的密封性。
3、石棉盘根的调节,我厂在出厂前已作初步调节,如开机时发现漏气(漏料),应将密封压盖螺栓拧紧,直至不漏气(漏料)为止。(注意:要平行适可而止,不可拧得太紧,以免损坏设备)
4、刀片的调节,在工作中如发现设备的气密性能减退,应检查刀片同机体是否有缝隙。如有缝隙,应将压板螺丝拧开、把刀片调整至贴紧机体内壁,再拧紧螺丝即可。因刀片同机体是软接触,故不必考虑被大颗粒卡死。
整机装配好后,应拆开电机风罩,转动输出轴,了解叶轮转动情况,若确实无故障,即可正式试车运行。

电机振动给料机(
电磁振动给料机
坐式电机给料机
坐式圆盘给料机
不锈钢星形卸料器
坐式给料机
吊式圆盘给料机
振动料斗
星形卸料器
微型给料机























豫公网安备 41071102000655号